New Shed Build

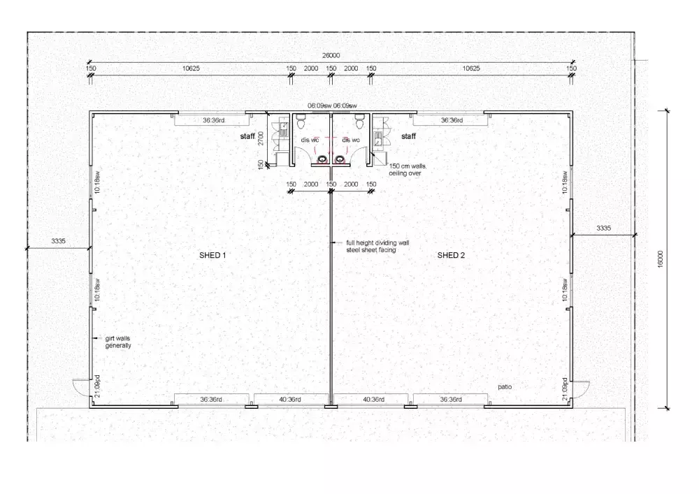
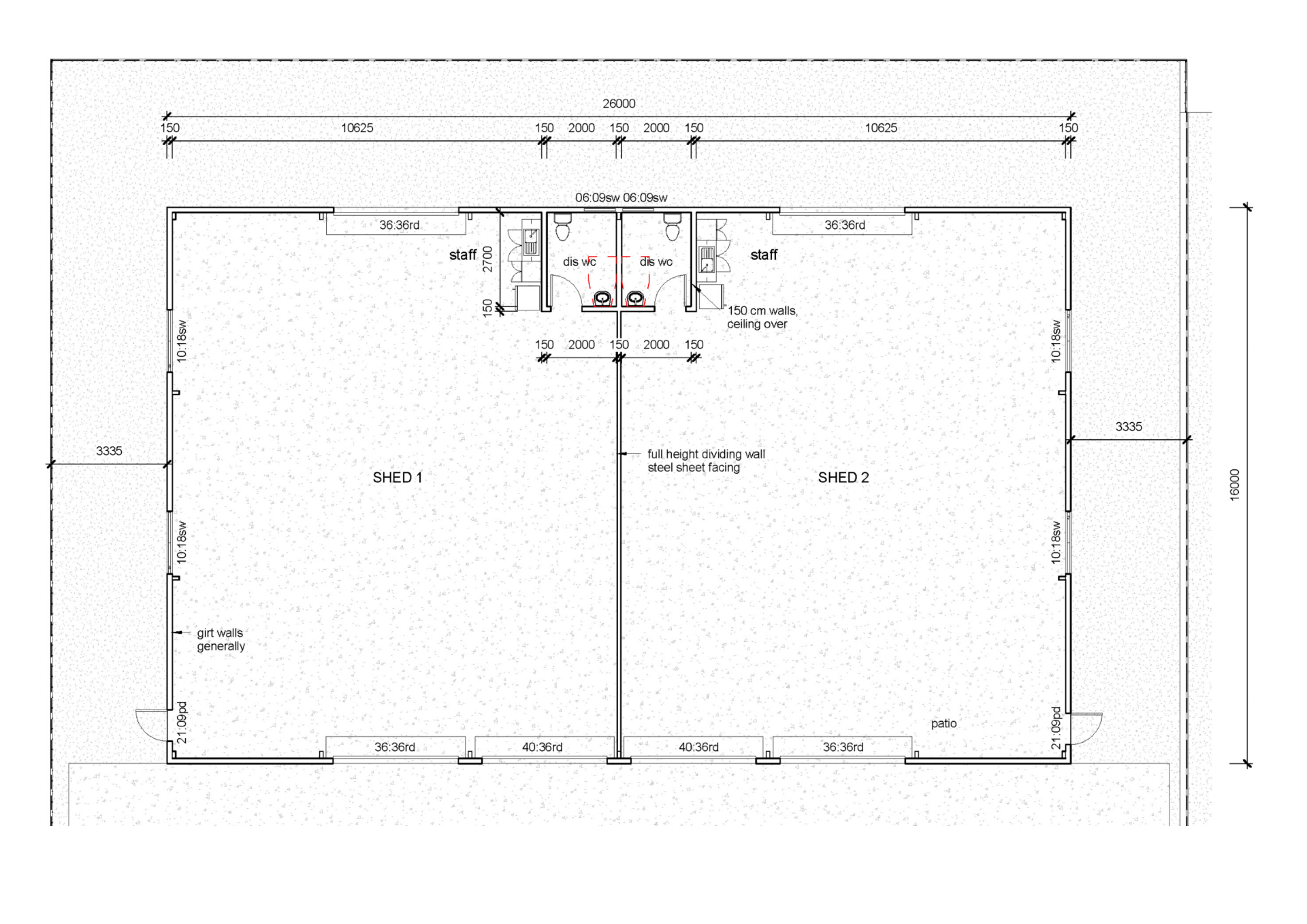
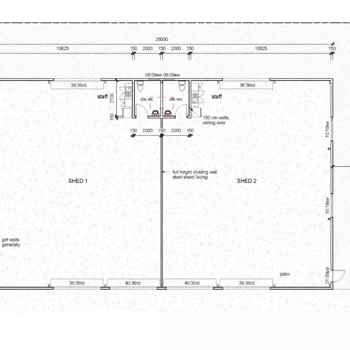
Secure yours off the plan. Each shed is 208m2 in size and the measurements are 16m deep by 13m wide.

This is 16-18 week turnkey package deal from the signing of your contract.

An option also exists to purchase both the sheds and lease the other side out for income.

Each of the sheds will ideally have its own bathroom and kitchenette and there will be plenty of parking out the front.

The sheds will have loads of airflow and therefore be naturally cool. With no rear neighbours having the rear roller door (3.6m high x 3.6m wide) up and the side windows open will harness the breezes nicely.

Access is well thought out with two large roller doors to the front. One being 4.0m high to allow for the larger vehicles and the perhaps the boat and the other being 3.6m high.

Located on Theresa Drive which is the commercial hub of Mossman you will be surrounded by long term and successful family businesses. There is no better position and location for your shed. 

Contact Callum on 0437 981 195 for full details.

Address 14 Theresa Dr, Mossman
Price SOLD
Property Type Commercial
Property ID 669
Category Industrial/Warehouse

Agent Details

Callum Jones photo

Callum Jones

0437 981 195
View Profile