Mossmans’ Prime Corner Commercial Freehold

Located on the prominent corner of Main St (Front St) Mossman and Johnston Road (Leading to famous Mossman Gorge).

Upstairs offices located on the corner side of the complex overlooking the intersection, Main St and the high school.

Currently tenanted with long term accountancy practice of over 20+ years.

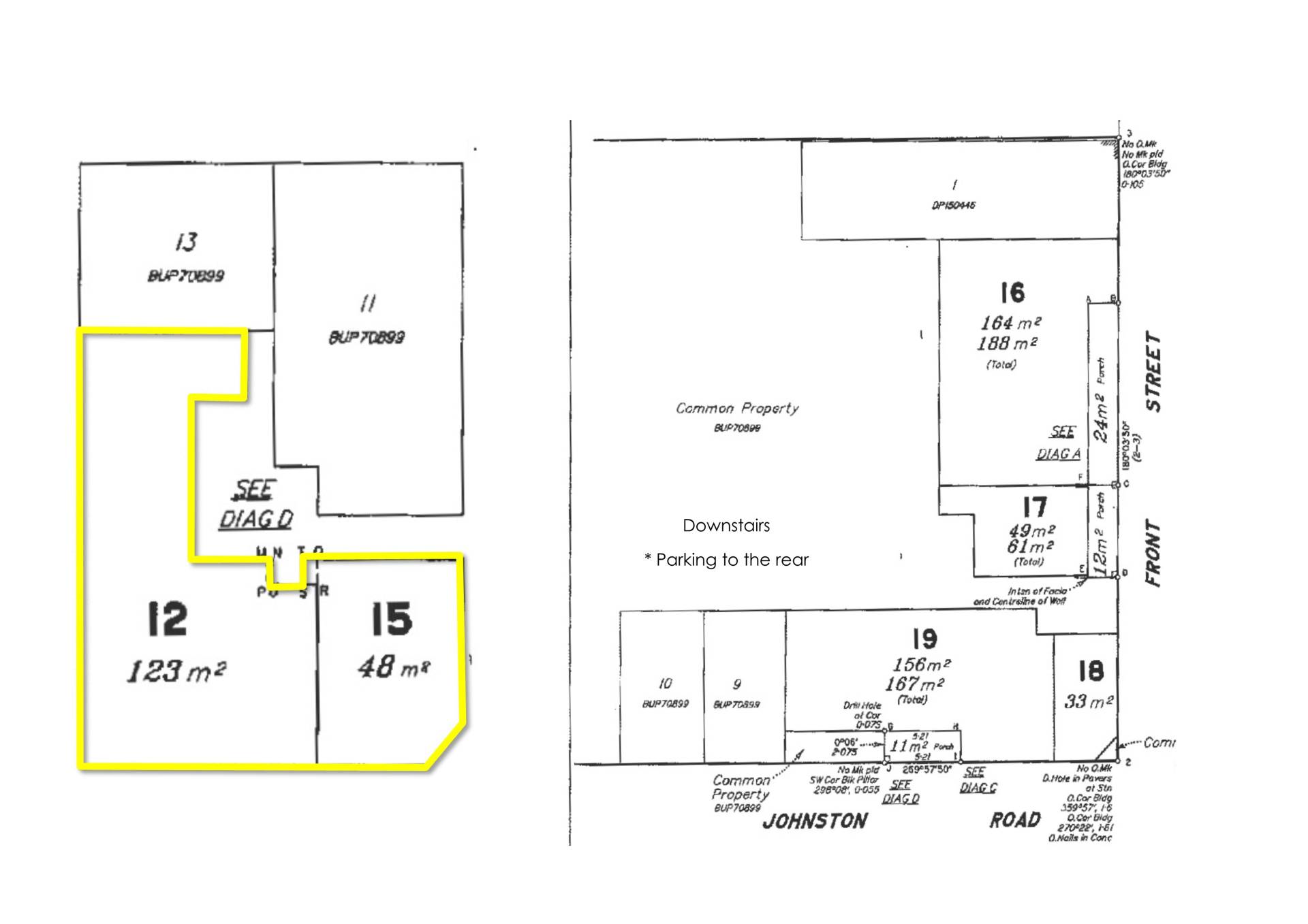
 Two freehold titles totalling 171m2 in size as below;

  • Lot 12 on SP161462 = 123m2
  • Lot 15 on SP161462 = 48m2

Located within the ‘Mt Demi Plaza’ Complex other long standing tenants in the building include Legal Firm Bolt, Burchill and Tranter, The Bendigo Bank Mossman Branch, Ray White Real Estate, Chinese Restaurant and Takeaway.

Income Snap Shot;

  • Income $45,000 + GST per year
  • Tenant pays all outgoings including council rates and body corporate fees
  • Lease = Four (4) years remaining of five (5) year lease expiry 31st Jan 2022.
  • Options = further Two (2) x Five (5) year terms to 31st Jan 2032.
  • 12.85% Net Yield/Return at Purchase Price $350,000

Please contact exclusive agent Callum Jones for all property details on 0437 981 195 and email to: callum@theagentportdouglas.com

Address Lot 12 & 15, 51-53 Front Street, Mossman
Price SOLD
Property Type Commercial
Property ID 578
Commercial Listing Type Sale
Category Offices
Office Area 184m2
Total Area 184m2

Agent Details

Callum Jones photo

Callum Jones

0437 981 195
View Profile