Sold

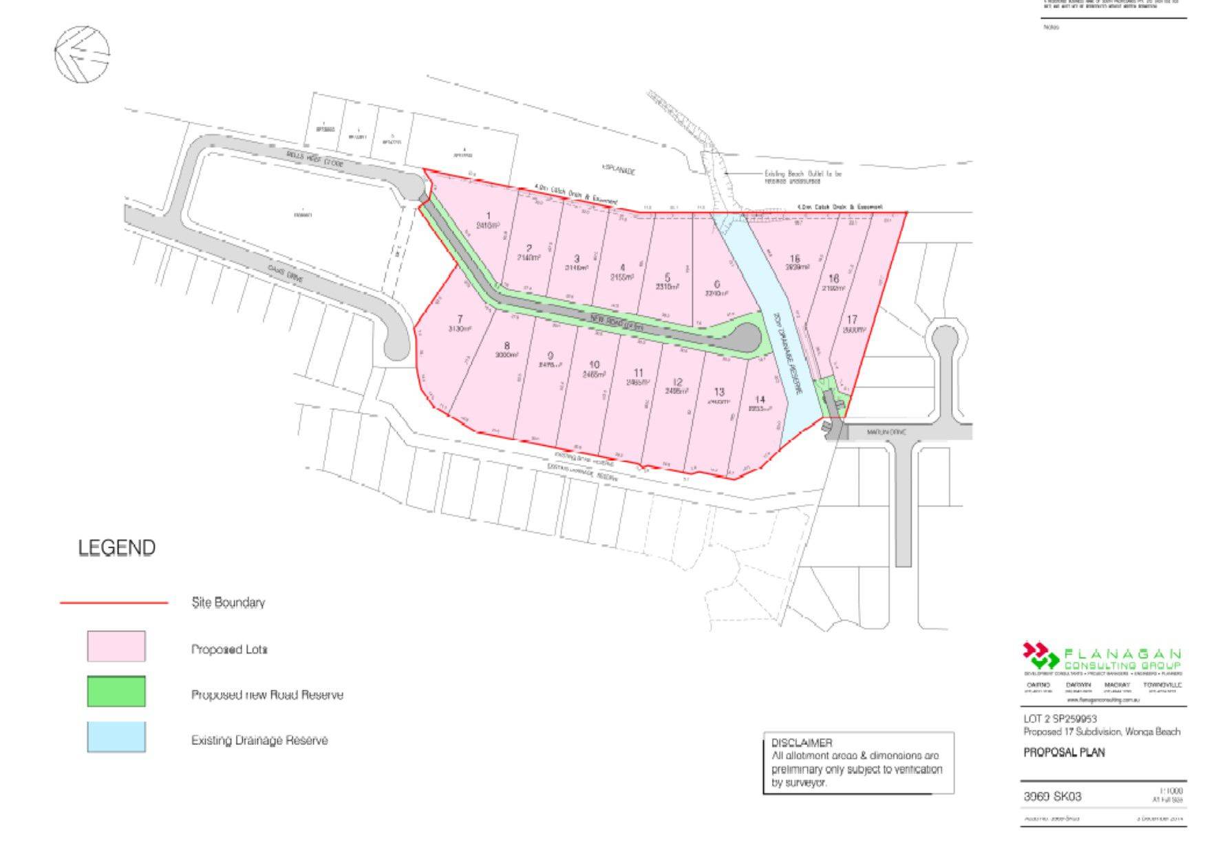
COUNCIL APPROVED DIRECT BEACHFRONT SUBDIVISION OF 17 SUPER LOTS RANGING 2140m2 TO 3130m2...

If you are a developer looking for a project you will know how hard it is to get a council approval that will create something special with buyer appeal for the outstanding finished product. This is an opportunity that you won't want to miss!

Whether you're an individual developer or running a group of investors to pool together the funding and take out their selection of the 17 gems that will be created on this 4.988ha beachfront site. It's taken years of perspiration to obtain this approval but it is now ready to bring in the machines and a brand new set of eyes with the current owners moving on.

The cover image is part of the beachfront reserve directly in front of the lots. Obviously all lots have different outlooks beyond the giant calophyllum trees to isolated Wonga Beach just metres from the proposed lots' front boundary with no road to cross.

The lots when developed will appeal to those seeking a beachside retirement home in a special place on a block big enough to create their own private domain.

For a detailed information memorandum about OASIS containing the full approvals, contact the agent Tony McGrath 0418 772 277 or email in at agent@theagentportdouglas.com

Be sure to include your phone number in your contact details to ensure your enquiry is dealt with.
4.99 ha
Address Lot 2 Oasis Drive, Wonga Beach
Price SOLD
Property Type Commercial
Property ID 402
Category Land/Development, Land/Development
Land Area 4.99 ha

Agent Details

Callum Jones photo

Callum Jones

0437 981 195
View Profile