Sold

At Home in Port Douglas' Most Charming Duplex

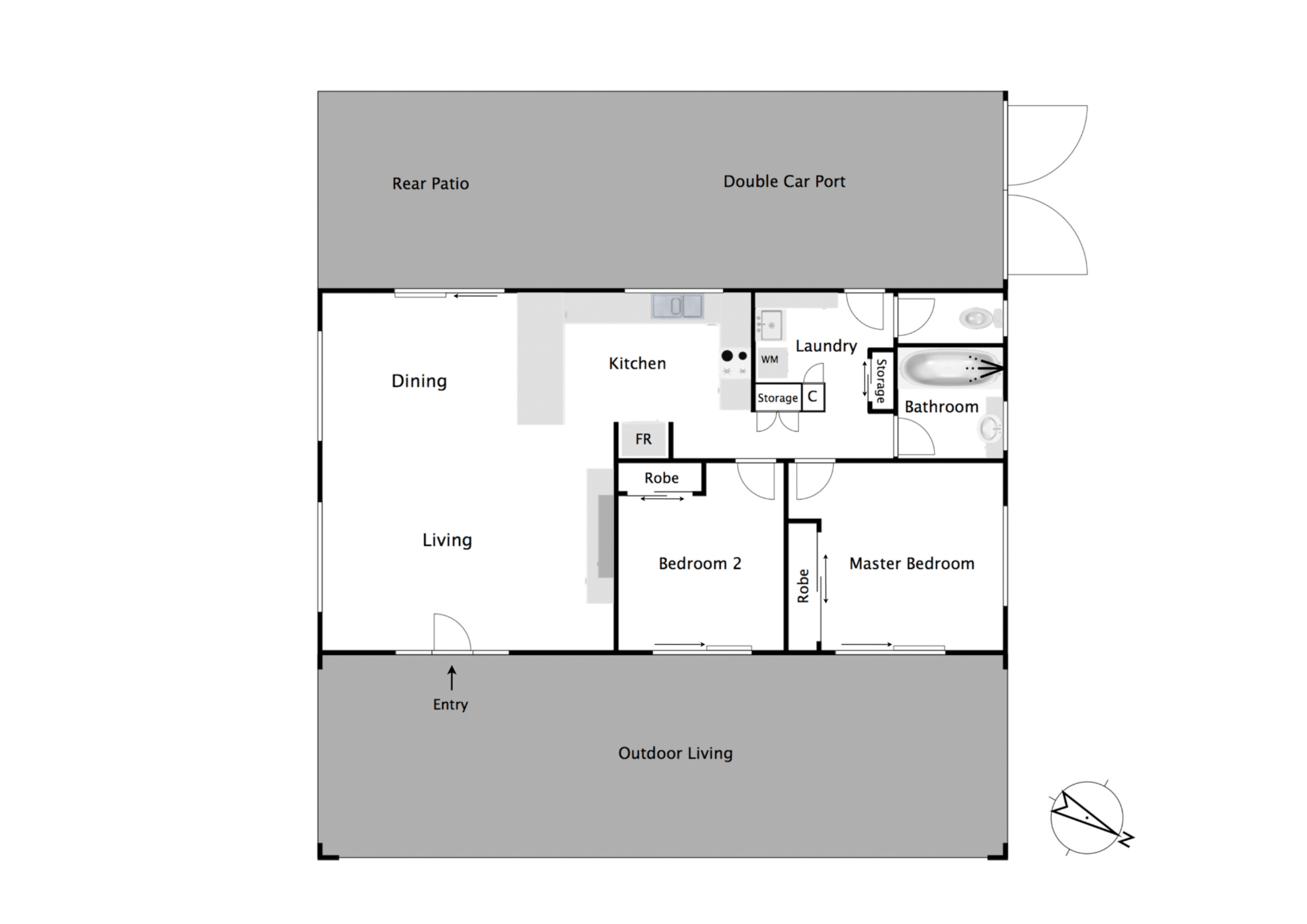
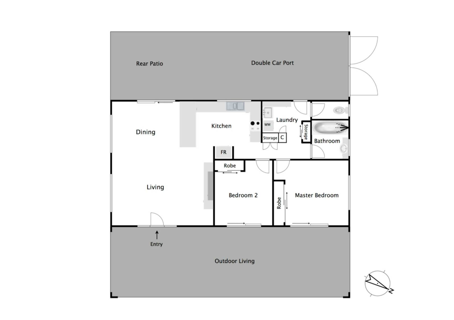
Hidden away behind splendid tropical gardens is this incredible standalone duplex. More like a home with its generous living area, large kitchen and spacious outdoor covered areas.

Positioned just a short stroll from the iconic sands of Four-mile Beach you could not ask for a better beachside location. This home enjoys a great corner position with car garaging from Pecten Avenue and foot access from Conch St. You will be amazed at just how quiet and private this property really is.

Both the bedrooms and the living area have direct access onto the huge covered patio...designed perfectly to best capture the coastal south-easterly sea breezes which naturally refresh the home.

Some of the features which await you @ 1/41 Pecten Ave;
* Two (2) roomy bedrooms with built-in cupboards and access to outside patio
* Lock up car accommodation with remote control access
* Corner position with great airflow throughout
* Security screens, air-conditioning and fully tiled
* Large central kitchen with loads of storage
* Renovated bathroom, separate toilet and large laundry
* Terrific tropical gardens - easily maintained and offering privacy
* Sprawling outdoor covered entertaining and living area
* Open plan spacious living and dining room
* Plenty of space for a pool
* No body corporate fees and pet friendly

There is an increasing demand for quality properties in prime locations such as this, absolutely perfect for those wishing to downsize, those looking for an easy maintainable Port Douglas retreat or those looking to enter the property market. There are zero body corporate fees and no restrictive rules and pets are more than welcome...this property is essentially a home at duplex prices.

There is loads of charm and character here just waiting for you in additional to all the features. There is potential aplenty if you wished to renovate or increase the size of the property and this home represents amazing value.

Contact Callum Jones to arrange your private inspection

Features

Outdoor entertainment area Fenced Verandah Low maintenance
2 1 2
Address 1, 41 Pecten Avenue St, Port Douglas
Price SOLD
Property Type Residential
Property ID 191
Category Other

Agent Details

Callum Jones photo

Callum Jones

0437 981 195
View Profile